Двухкомнатная квартира 55,00 м2 по ул. Гарибальди 18 за 25000000 руб.

Двухкомнатная квартира по ул. Гарибальди, 18 в Москве
Цена 25 000 000 р. (454 545 р./м2)
Подать заявку на ипотеку
Адрес Гарибальди, 18
Этаж 13/21
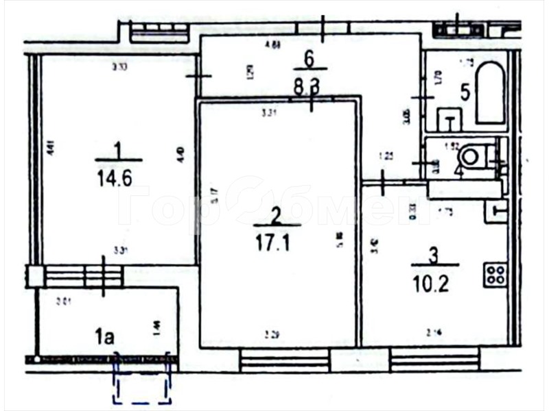
Площадь общая 55 м2, жилая 32 м2, кухни 10 м2
Кол-во комнат Двухкомнатная
Квартира современном монолитном доме рядом с метро. Планировка квартиры: две изолированные комнаты, кухня оборудована мебельным гарнитуром и всей необходимой бытовой техникой, раздельный санузел, окна выходят на Восток (светлая квартира), вид во двор, тихо, площадь квартиры с застекленной лоджией 59 кв.м. Чистые ухоженные входные группы, видеонаблюдение, домофон, хорошие соседи, подземный паркинг. Развитая инфраструктура, до станции метро Новые Черемушки 10 минут пешком, рядом Воронцовский парк с развитой инфраструктурой для спорта и отдыха, школа, детский сад, сетевые магазины и магазины шаговой доступности, фитнес-клуб, удобный выезд на основные транспортные магистрали города. Документы: Договор предусматривающий переход права собственности на равнозначное жилое помещение, более пяти лет в собственности, полная стоимость в договоре, три собственника, подходит под ипотеку, перепланировок нет, возможен оперативный выход на сделку, альтернативная продажа. Если вы не смогли дозвониться, оставьте сообщение на сайте, я обязательно отвечу и верну вам звонок. Сопровождение сделки для покупателя бесплатно. Оказываем помощь и консультируем по вопросам получении ипотечного кредита и одобрения ипотеки. Обеспечиваем юридическую чистоту и безопасность сделки.
Описание дома
Этажность дома 21
Объявление № 23947100
Дата подачи:
4 марта 2026 г. 4:12
Дата обновления:
4 марта 2026 г. 4:12
Просмотров 3 Хотите продать быстрее?

Продавец
Агентство недвижимости:
ГУСЕВ ПЕТР АНДРЕЕВИЧ
Показать номер телефона
Пожаловаться
Комментарии:
Добавить